Studio Vs One Bedroom Apartments How Do The Two Stack Up Hotspot Rentals
Two in one bedroom design #shortsTwins in Tow A duo of cozy beds sit side by side in this colorful kids' room Matching iron frames hold the beds high off the ground for extra storage space below To keep guests from seeing toys, school supplies, and seasonal clothes hidden under beds, use oversize bedding or a bed skirt draped over the mattresses
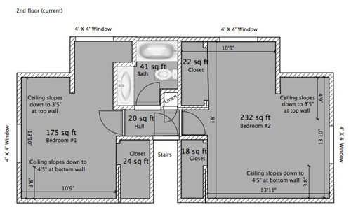
Two double beds in one bedroom
Two double beds in one bedroom-There are 167 twobedroom suites in Las Vegas The hotel with the most 2 bedroom suites is Caesars Palace You can accommodate up to 12 guests in hotels with an average star rating of 432 Two bedroom suites for up to 12 peopleThis two story layout puts the bedrooms and bath upstairs for
How To Make One Bedroom Feel Like Two Home Bunch Interior Design Ideas
OneBedroom Small House Design This onebedroom small house design is 38 square meter house concept with a footprint of 6 meters by 6 meters The house is suitable for those who have a small budget and who want to have their own home This is also suitable for beach resorts where it can be rented by your visitors to stay for a nightChild psychologists and parents agree that it is best for each child to grow up and develop in their own room, but sometimes the economic situations or other circumstances have two children share a room Are you wondering what you can do to make the room sharing smooth?Riddle is the latest tricky puzzle being widely shared by people on social media This is one of the many riddles out there that people are finding difficult to solve So here we are going to solve and provide the correct Two In A Bedroom, One In A House, But None In A Kitchen
The Heart of Homewood Because life on the road should be more about life — and less about the road See the Heart of Homewood;Bunk beds are two stacked beds frames top and bottom, some are fabricated as one piece, some can be unstacked to create two separate beds if desired Often they have rails around the top bunk for safety They typically do not use box springs;One and twobedroom rents were up 244 percent and 218 percent, respectively Monthovermonth, prices for onebedrooms dipped by 02 percent, a slight change but welcome news to renters who have consistently seen steady increases
Two double beds in one bedroomのギャラリー
各画像をクリックすると、ダウンロードまたは拡大表示できます
![]() 1 | ![]() 1 | 1 |
![]() 1 | ![]() 1 | ![]() 1 |
1 | ![]() 1 | 1 |
![]() 1 | ![]() 1 | 1 |
![]() 1 | ![]() 1 | ![]() 1 |
![]() 1 | ![]() 1 | ![]() 1 |
![]() 1 | ![]() 1 | ![]() 1 |
![]() 1 | ![]() 1 | ![]() 1 |
![]() 1 | ![]() 1 | ![]() 1 |
![]() 1 | ![]() 1 | 1 |
![]() 1 | 1 | ![]() 1 |
![]() 1 | 1 | ![]() 1 |
![]() 1 | 1 | 1 |
![]() 1 | ![]() 1 | ![]() 1 |
![]() 1 | ![]() 1 | 1 |
![]() 1 | 1 | 1 |
1 | ![]() 1 | ![]() 1 |
![]() 1 | ![]() 1 | ![]() 1 |
![]() 1 | ![]() 1 | ![]() 1 |
![]() 1 | 1 | ![]() 1 |
![]() 1 | ![]() 1 | ![]() 1 |
![]() 1 | ![]() 1 | ![]() 1 |
![]() 1 | ![]() 1 | 1 |
![]() 1 | ![]() 1 | 1 |
![]() 1 | ![]() 1 | ![]() 1 |
![]() 1 | ![]() 1 | ![]() 1 |
![]() 1 | ![]() 1 | ![]() 1 |
![]() 1 | 1 | ![]() 1 |
![]() 1 | ![]() 1 | ![]() 1 |
1 | ![]() 1 | ![]() 1 |
![]() 1 | ![]() 1 | ![]() 1 |
1 | ![]() 1 | ![]() 1 |
![]() 1 | ![]() 1 | ![]() 1 |
![]() 1 | ![]() 1 | ![]() 1 |
![]() 1 | ![]() 1 |
You searched for onebedroom apartments for rent near you Let Apartmentscom help you find the perfect onebedroom apartment for rent nearby Click to view any of these rental units to see photos, reviews, floor plans and verified information about schools, neighborhoods, unit availability and much moreOption 3 Hidden bed The tendencies of the modern world of design are actively pushing us to abandon all the usual and commonplace There will be no more than two rooms a bedroom and a living room, but only an ergonomic transforming space Specialists propose to choose a universal "cube" (house in the house), not the classics
Incoming Term: 2 in one bedroom, two babies in one bedroom apartment, two cats in one bedroom apartment, two rugs in one bedroom, two beds in one bedroom ideas, two beds in one bedroom, two desks in one bedroom, two one bedroom apartment, two in bedroom one in house riddle, two double beds in one bedroom,







































.jpg)














































0 件のコメント:
コメントを投稿